Abbildung Zweifamilien Ziegler Zürich
Abbildung 1 Zweifamilien Ziegler Zürich Abbildung 2 Zweifamilien Ziegler Zürich Abbildung 3 Zweifamilien Ziegler Zürich Abbildung 2 Zweifamilien Ziegler Zürich Abbildung 1 Zweifamilien Ziegler Zürich

ZWEIFAMILIENHAUS ZIEGLER – ZÜRICH

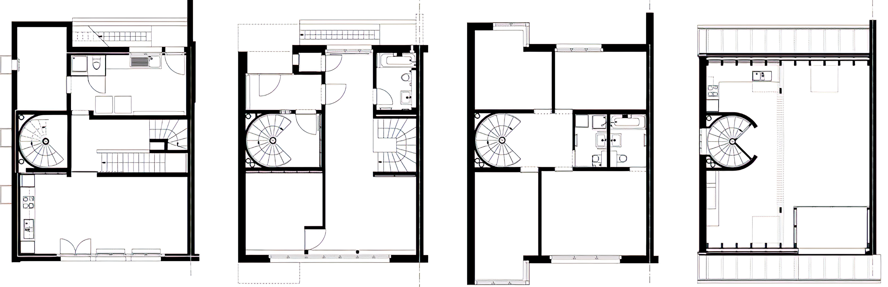
Das Zweifamilienhaus an der Witikonerstrasse in Zürich Hottingen ist Teil einer, in den 70er Jahren erbauten, Gebäudereihe. Die 4.5 Zimmer Wohnung im Erd- und Untergeschoss wurde komplett saniert und die Küche vom Erdgeschoss ins Untergeschoss verlegt, sodass ein grosszügiger Küchen-, Ess- und Wohnraum mit direkterem Gartenzugang entstand. ... Der ehemalige Küchenraum im Erdgeschoss wird neu als zusätzliches, halboffenes Zimmer genutzt. Die 5.5- Zimmer Wohnung in den Obergeschossen wurde ebenfalls komplett saniert. Im 1. Dachgeschoss wurde die Küche zum Wohnraum hin geöffnet und es wurde neu, auch auf diesem Geschoss, ein kleines Bad mit neuem Dachflächenfenster eingebaut. Im gesamten Gebäude wurden sämtliche Sanitär- und Elektroinstallationen komplett erneuert und alle Oberflächen neu behandelt. Am Äusseren des Gebäudes wurde nichts verändert.


Standort Witikonerstrasse, Zürich
Bauherrschaft privat
Architektur Madeleine Lambert, Zürich
Bauleitung Junod Epper Bauagentur, Zürich
Bauzeit Januar – Mai 2004
Bauvolumen 1000 m³
   
Plan Zweifamilien Ziegler Zürich
Plan Zweifamilien Ziegler Zürich