Abbildung Einfamilienehaus Marconi, Zürich
Abbildung 1 Einfamilienehaus Marconi, Zürich Abbildung 2 Einfamilienehaus Marconi, Zürich Abbildung 3 Einfamilienehaus Marconi, Zürich Abbildung 2 Einfamilienehaus Marconi, Zürich Abbildung 1 Einfamilienehaus Marconi, Zürich

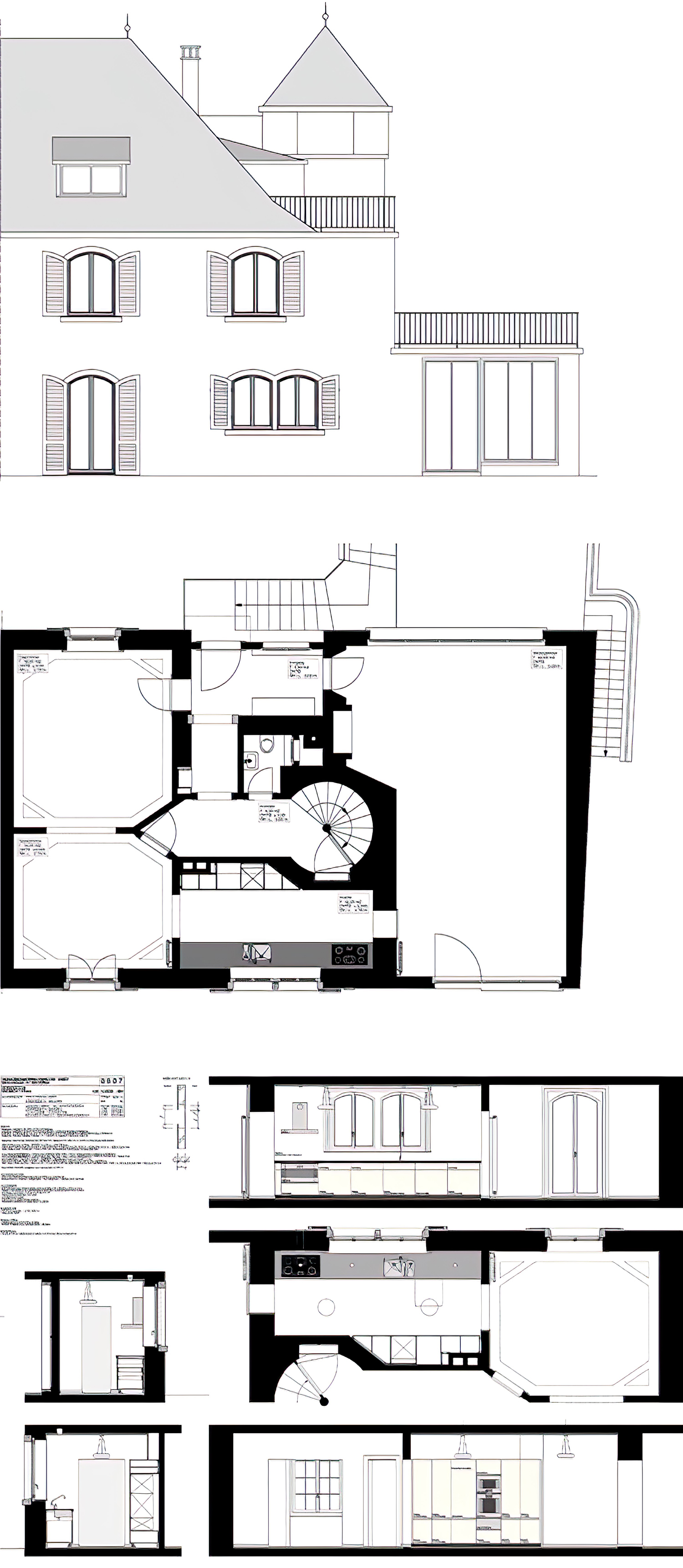
EINFAMILIENHAUS MARCONI – ZÜRICH

Das einseitig angebaute Einfamilienhaus aus der Jahrhundertwende wurde in den 70er Jahre erweitert und der Grundriss wurde damals nur leicht verändert. Die Bedürfnisse der Bewohner haben sich jedoch geändert, so werden zum Beispiel eine grössere Küche, besser Raumverbindungen und ein offeneren Bezug zum Garten gewünscht. ... Die bestehende kleine, gefangene Küche wird nun neu als verbindender Raum zwischen dem grosszügigen Wohnraum und dem Esszimmer mit anschliessendem Familienzimmer verstanden. Sie verfügt nicht mehr über einen Ausgang in den Garten, dafür hat das Esszimmer, welches zuvor eher dunkel war, neu einen Gartenausgang und ist somit auch besser belichtet. Die Fassade wird durch das neue Doppelfenster in der Küche aufgewertet und erscheint nun sehr harmonisch.


Standort Bergstrasse, Zürich
Bauherrschaft privat
Architektur Madeleine Lambert, Zürich
Bauleitung Renato Rosinus, Zürich
Bauzeit 4 Monate
   
Plan Haus Marconi, Zürich
Plan Haus Marconi, Zürich