Abbildung 7-Zimmer-Wohnung Winkelwiese, Zürich Altstadt
Abbildung 1 7-Zimmer-Wohnung Winkelwiese, Zürich Altstadt Abbildung 2 7-Zimmer-Wohnung Winkelwiese, Zürich Altstadt Abbildung 3 7-Zimmer-Wohnung Winkelwiese, Zürich Altstadt Abbildung 2 7-Zimmer-Wohnung Winkelwiese, Zürich Altstadt Abbildung 1 7-Zimmer-Wohnung Winkelwiese, Zürich Altstadt

7-ZIMMER-WOHNUNG WINKELWIESE – ZÜRICH ALTSTADT

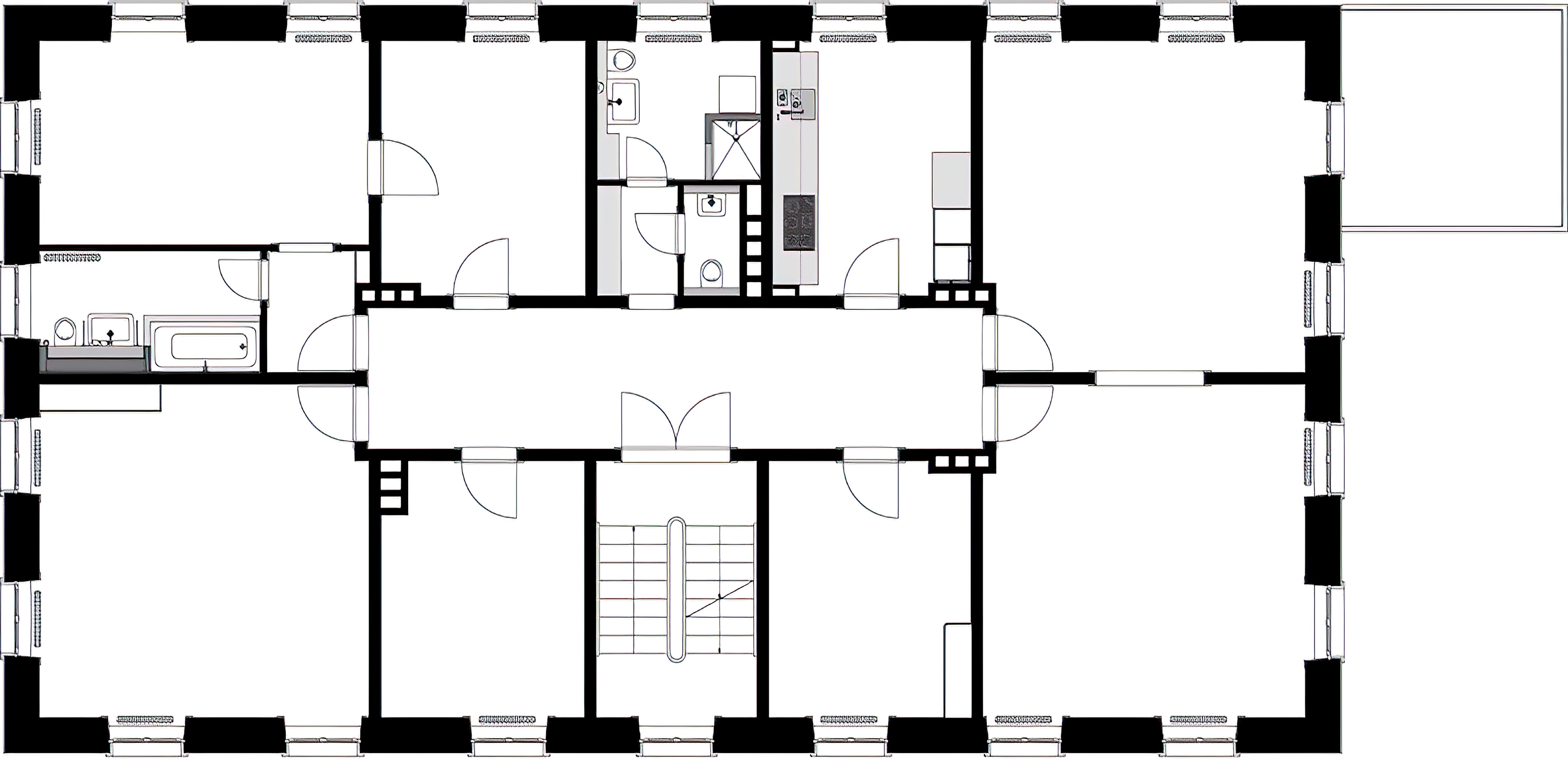
Das grosse, residenzielle, im Jahre 1837 erbaute, dreigeschossige Mehrfamilienhaus an der Winkelwiese in Zürich verfügt pro Etage über eine grosszügige 7-Zimmer-Wohnung und eine später eingebaute Dachwohnung. ... Da das Gebäude unter Denkmalschutz steht, müssen sämtliche Veränderungen der alten Bausubstanz entsprechen. Der Umbau betraf die Wohnung im 2. Obergeschoss. Die Aufgabe bestand darin, eine sanfte Renovation mit kleineren, räumlichen Eingriffen, neue Bäder und eine neue Küche zu planen. Als räumliche Veränderung wurde die Doppelschiebetür zwischen den beiden Wohnräumen geplant. Die Bäder und die Küche wurden schlicht und funktional entworfen. Die Farbwahl wurde den Farben des wunderschönen bestehenden Korridorbodens angepasst. Die bestehenden Materialien wurden entsprechend der alten Substanz nachhaltig saniert.


Standort Winkelwiese, Zürich
Bauherrschaft Hülfsgesellschaft Zürich
Architektur Madeleine Lambert, Zürich
Bauleitung Zschokke GU, Dietlikon
Bauzeit Januar – April 2006
Bauvolumen 650 m³
   
Plan Winkelwiese
Plan Winkelwiese