Abbildung 7-Zimmer-Wohnung Winkelwiese, Zürich Altstadt
Abbildung 1 7-Zimmer-Wohnung Winkelwiese, Zürich Altstadt Abbildung 2 7-Zimmer-Wohnung Winkelwiese, Zürich Altstadt Abbildung 2 7-Zimmer-Wohnung Winkelwiese, Zürich Altstadt Abbildung 2 7-Zimmer-Wohnung Winkelwiese, Zürich Altstadt Abbildung 1 7-Zimmer-Wohnung Winkelwiese, Zürich Altstadt

7-ZIMMER-WOHNUNG WINKELWIESE – ZÜRICH ALTSTADT

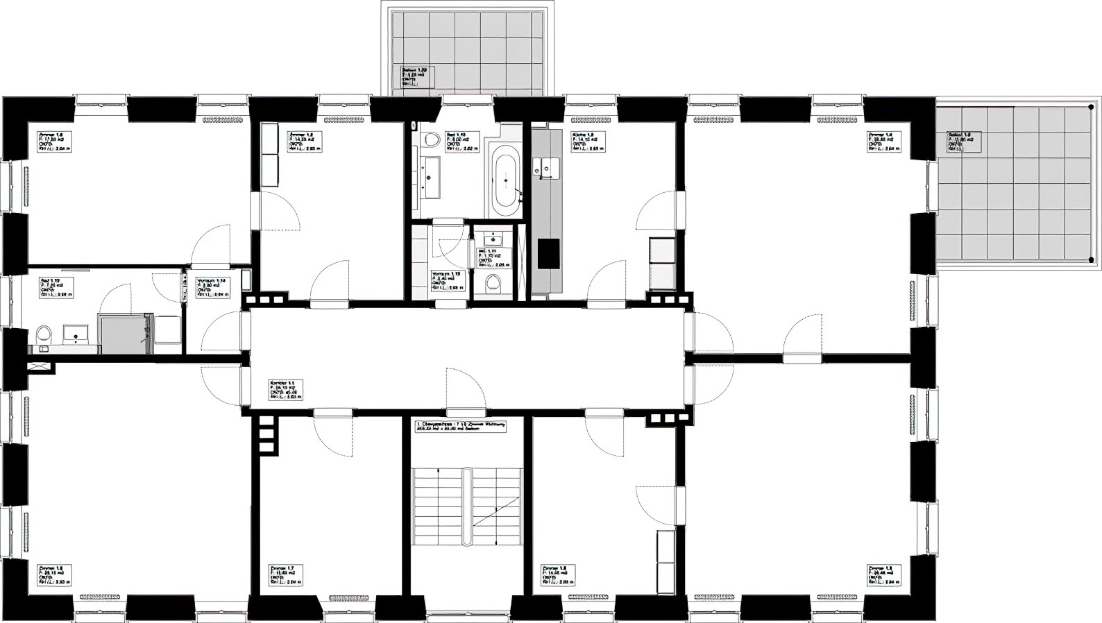
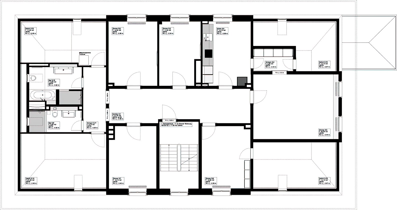
Das grosse, residenzielle, im Jahre 1837 erbaute, dreigeschossige Mehrfamilienhaus an der Winkelwiese in Zürich, verfügt pro Etage über eine grosszügige 7 Zimmer Wohnung und eine später eingebaute 5 Zimmer Dachwohnung. Da das Gebäude unter Denkmalschutz steht, müssen sämtliche Veränderungen der alten Bausubstanz entsprechen. ... Der Umbau betraf die gesamte Liegenschaft. Sämtliche Installationen wurden erneuert, das Kellergeschoss entfeuchtet und das Treppenhaus den neusten Normen angepasst. Die Wohnung im Erdgeschoss wurde nur sanft saniert, in der Wohnung im 1. Obergeschoss und im Dachgeschoss wurden die Bäder und die Küchen komplett erneuert. Die Bäder und die Küche wurden schlicht und funktional entworfen und die Farben den bestehenden Farbtönen des Hauses angepasst. Im Dachgeschoss wurden die alten Stuckaturen freigelegt und restauriert. Die bestehenden Materialien wie Parkettböden und Stuckaturen wurden entsprechend der alten Substanz nachhaltig saniert.


Standort Winkelwiese, Zürich
Bauherrschaft Hülfsgesellschaft Zürich
Architektur Madeleine Lambert, Zürich
Bauleitung Privera AG, Wallisellen
Bauzeit Mai 2017 – März 2018
   
Plan 7-Zimmer-Wohnung Winkelwiese, Zürich Altstadt Plan 7-Zimmer-Wohnung Winkelwiese, Zürich Altstadt Plan 7-Zimmer-Wohnung Winkelwiese, Zürich Altstadt
Plan 7-Zimmer-Wohnung Winkelwiese, Zürich Altstadt